002 S03 C03 P03
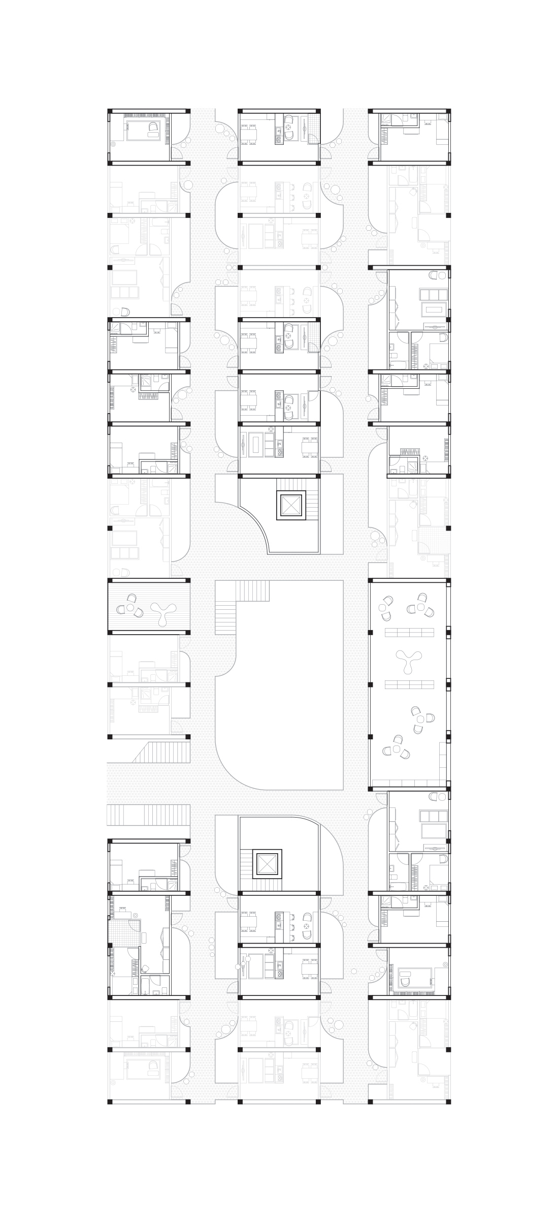
House In-Between
Public Housing
Bronx, New York, NY
Columbia University GSAPP Core III Studio Studio Critic: Ilias Papageorgiou, PILA Studio
collaborated with Chuyang Zhou
Housing complex project in Bronx, NY. The Project sought to demonstrate the needs for housing in the near future. Rather than fixed housing units by family type, housing units can proliferate by adding rooms depending upon the residents’ living conditions. The space in-between rooms, exterior corridors act as not only the pathways from rooms to rooms but also allow semi public spaces as small courtyards for users.
House In-Between
Public Housing
Bronx, New York, NY
Columbia University GSAPP Core III Studio Studio Critic: Ilias Papageorgiou, PILA Studio
collaborated with Chuyang Zhou
Housing complex project in Bronx, NY. The Project sought to demonstrate the needs for housing in the near future. Rather than fixed housing units by family type, housing units can proliferate by adding rooms depending upon the residents’ living conditions. The space in-between rooms, exterior corridors act as not only the pathways from rooms to rooms but also allow semi public spaces as small courtyards for users.







